Danh mục
Dịch vụ xin phép xây dựng cấp quận huyện công ty Xuyên Trường
Công ty TNHH Tư vấn Thiết kế Xây dựng XUYÊN TRƯỜNG chuyên cung cấp dịch vụ xin phép xây dựng nhà ở riêng lẻ, tòa nhà văn phòng, chung cư, khách sạn, trung tâm thương mại....
Hiểu rõ và nắm vững các quy định về thiết kế kiến trúc trong khu đô thị hiện hữu trên địa bàn TP.HCM. Chúng tôi sẽ giúp bạn có hồ sơ thiết kế bản vẽ xin phép xây dựng theo đúng Quy hoạch kiến trúc của từng quận, huyện và tận dụng tối đa mật độ xây dựng, số tầng xây dựng.
0903 848 641 (KS. HƯNG) 0933 31 31 31 (KTS. THỊNH)
Một số Giấy Phép Xây Dựng cấp quận huyện đã xin phép
Phường Đông Hưng Thuận: Nhà kho


Quận Bình Tân: Nhà ở riêng lẻ

Quận 3: Nhà ở bán kiên cố


Quận 8: Nhà ở riêng lẻ
.jpg)
.png)
Quận 12: Nhà ở
1. Thiết kế điều chỉnh giấy phép xây dựng: Nội dung điều chỉnh tăng mật độ xây dựng so với Giấy phép xây dựng, ngày 26/10/2016 của UBND Q.12 cấp.
+ Giấy phép xây dựng, ngày 26/10/2016 của UBND quận 12 cấp

+ Điều chỉnh Giấy phép và bản vẽ xây dựng của Cty Xuyên Trường thiết kế

.jpg)
2. Thiết kế xin phép xây dựng mới

Quận Tân Phú: Xin phép xây dựng ở quận Tân Phú
+ Xin phép cải tạo sửa chữa, nâng tầng:


+ Xin phép xây dựng mới:


Quận Gò Vấp: Xin phép xây dựng ở quận Gò Vấp

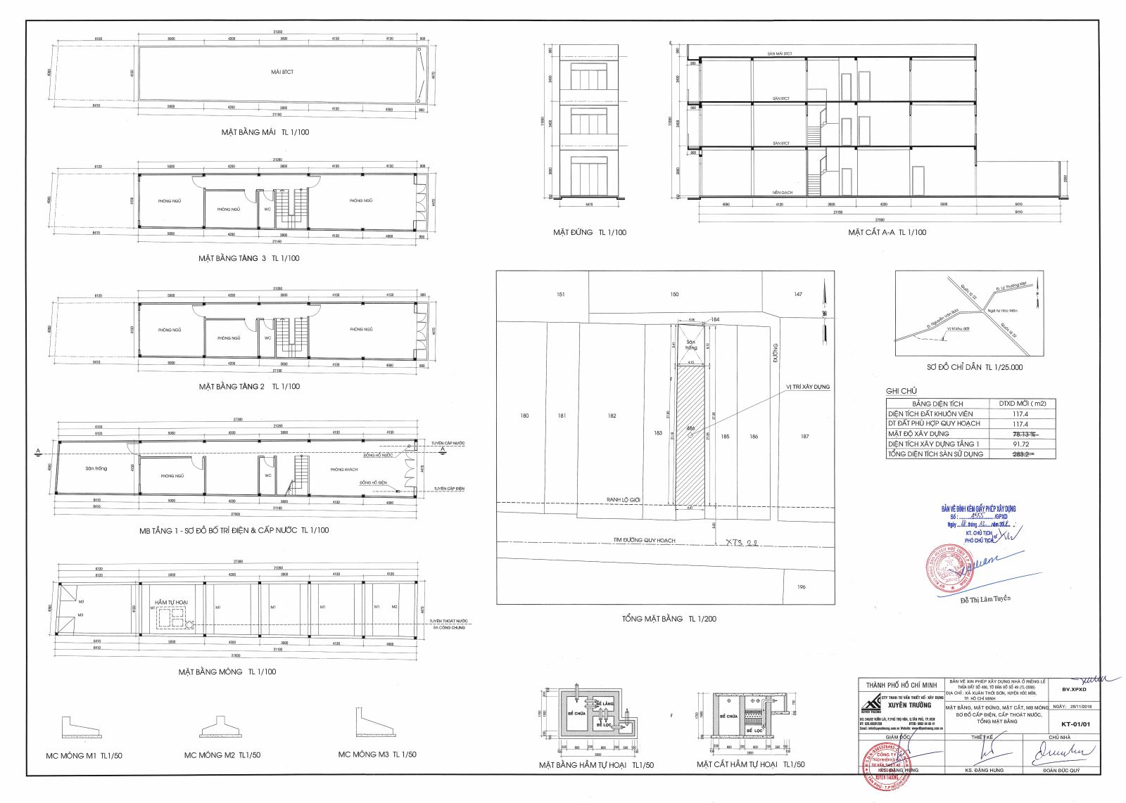
Huyện Hóc Môn: Xin phép xây dựng ở Huyện Hóc Môn



Quận Thủ Đức: Xin phép xây dựng ở Quận Thủ Đức

Quận 6: Xin phép xây dựng ở Quận 6




Huyện Củ Chi : Xin phép xây dựng ở Huyện Củ Chi


Bài viết liên quan
CTY TNHH TƯ VẤN - THIẾT KẾ - XÂY DỰNG Xuyên Trường
Website: xinphepxaydung.info
ĐC: 249/32 Vườn Lài, P. Phú Thọ Hòa, Q. Tân Phú, Tp. HCM